-
Trụ Đèn Tròn Côn
trụ đèn tròn côn thường được dùng chiếu sáng đường phố, công viên bên cảng, trụ đèn tròn côn chiếu sáng khu dân cư. Trụ đèn tròn côn là trụ được chấn với biên dạng hình tròn có đáy to và ngọn nhỏ dần nên được gọi là hình côn. Trụ đèn tròn côn hay trụ đèn bát giác côn đều có tên gọi chung là trụ đèn chiếu sáng. trụ đèn chiếu sáng có nhiều loại kích thước khác nhau tùy theo yêu cầu sử dụng của mỗi khách hàng, của mỗi công trình. VINA Lite chuyên sản xuất trụ đèn chiếu sáng theo yêu cầu và bản vẽ của khách hàng -
Trụ Đèn Bát Giác
sản xuất trụ đèn bát giác thường được dùng chiếu sáng đường phố, công viên bến cảng, trụ đèn bát giác chiếu sáng khu dân cư. Trụ đèn bát giác là trụ được chấn với biên dạng hình bát giác có đáy to và ngọn nhỏ dần nên được gọi là hình bát giác côn. Trụ đèn tròn côn hay trụ đèn bát giác côn đều có tên gọi chung là trụ đèn chiếu sáng. trụ đèn chiếu sáng có nhiều loại kích thước khác nhau tùy theo yêu cầu sử dụng của mỗi khách hàng, của mỗi công trình. VINA Lite chuyên sản xuất trụ đèn chiếu sáng theo yêu cầu và bản vẽ của khách hàng -
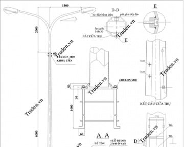
Trụ Đèn Lắp Cần Kiểu
Trụ đèn chiếu sáng gồm nhiều loại trụ với kích thước và thiết kế khác nhau với mỗi trụ đèn chiếu sáng cùng sự kết hợp các cần đèn kiểu sẽ cho ra một bố cục bản vẽ khác nhau để tạo nên dấu ấn cho mỗi công trình. Với các cần đèn kiểu được thiết kế đẹp mắt và độc đáo sẽ mang lại nét tươi mới cho mỗi công trình, Trụ đèn chiếu sáng lắp cần kiểu làm tăng thêm sự lựa chọn của bạn cho công trình của mình, với nhiều kiểu dáng trụ đèn lắp cần kiểu là nét phá cách khỏi mô típ thông thường trong thiết kế. -
Trụ Đa Giác Giàn Đèn Nâng Hạ
Trụ đa giác giàn đèn nâng hạ là trụ chuyên dùng cho các công trình có yêu cầu độ chiếu sáng trên khuôn viên rộng lớn như công viên bến cảng, sân bay, sân vận động. Trụ đa giác giàn đèn nâng hạ có tác dụng vô cùng to lớn trong việc chiếu sáng cho mỗi công trình. với công dụng của trụ đa giác giàn đèn nâng hạ thì rất thuận tiện trong việc bảo dưỡng bảo hành bộ đèn chiếu sáng trên giàn đèn mỗi khi có sự cố hỏng học, chập cháy bộ đèn chiếu sáng. khách hàng có thể dụng hệ thống nâng hạ giàn đèn để hạ bộ đèn chiếu sáng xuống và thay thế ngay tại chân đèn., nó khác phục triệt để các vấn đề của trụ truyền thống khi chưa có giàn đèn nâng hạ hay trụ giàn đèn cố định. VINA Lite đang sản xuất và cung cấp ra thị trường các trụ đa giác giàn đèn nâng hạ sau; Trụ đa giác giàn đèn nâng hạ 20m trụ đa giác giàn đèn nâng hạ 25m trụ đa giác giàn đèn nâng hạ 30m trụ đa giác giàn đèn nâng hạ 35m và các trụ đa giác giàn đèn cố định tùy theo thiết kế của khách hàng. -
Trụ Gang Trang Trí
VINA LiTe đơn vị Sản xuất trụ gang trang trí, trụ đèn chiếu sáng, với nhiều mẫu mã đa dạng phong phú để khách hàng thoải mái lựa chọn. Trụ gang trang trí là trụ được đúc bằng gang với nhiều hoa văn họa tiết đẹp mắt, kết hợp với các bộ đèn cách điệu tạo điểm nhấn cho mỗi công trình mà nó hiện hữu. -
Trụ Hoa Sen VINA LiTe
Chúng tôi nhà sản xuất và thiết kế trụ đèn chuyên nghiệp và uy tín, ngoài những mẫu mã có mặt trên thị trường chúng tôi đang áp dụng và đã sản xuất thành công trụ đèn hoa sen. Với thiết kế này công trình sẽ trở nên mềm mại và gần gũi hơn với thiên nhiên. trụ đèn hoa sen là một lựa chọn tuyệt vời cho các bùng binh trong công viên, trong khu dân cư thiết kế mới đẹp hiện đại -
Bộ Đèn Đường-Đèn Pha
VINA LiTe đơn vị nhập khẩu và lắp ráp, Cung cấp bộ đèn đường chiếu sáng led, đèn pha led, và các loại đèn khác, với bộ đèn đường led được vina lite nhập khẩu và phân phối với nhiều bộ link kiện của các hãng nổi tiếng như philips, nichia, samsung, osram.. đến với VINA LiTe bản sẽ tịm được bộ đèn đường led phù hợp giá thành mà vẫn đảm bảo về chất lượng hàng đầu. -
Lan Can Cầu
Lan Can Cầu là thiết bị dùng để che chắn hai bên thành cầu, nhằm ngăn các phương tiện cũng như con người khi tham gia qua cầu khi có tai nạn không bị văng ra khỏi cầu làm ảnh hướng đến thiệt hại về tính mạng và phương tiện giao thông. Lan can cầu được chúng tôi sản xuất với nhiều mẫu mã đa dạng, và tuân thủ thiết kế triệt để của khách hàng. với Lan Can Cầu được sản xuất bởi vina lite bạn hoàn toàn an tâm về chất lượng và mẫu mã. -
Buloong Móng
bulong móng hay còn gọi Bulong neo là một chi tiết quan trọng dùng để cố định các kết cấu, đặc biệt là kết cấu thép, gắn chặt vào xi măng. VINA LiTe chuyên sản xuất bulong móng theo bản vẽ và yêu cầu của khách hàng. Bulong móng có nhiều loại cấp độ bền khác nhau tùy theo hồ sơ thiết kế của mỗi công trình mà lựa chọn bulong móng có cấp bền tương ứng.. -
-
ĐÈN ĐƯỜNG LED
Đèn đường led được vina lite nhập khẩu và phân phối với nhiều mẫu mã đa dạng phong phú được lắp ráp với linh kiện của các hãng nổi tiếng như philips, osram, lumiled, samsung..ngày này đèn đường led được sử dụng rộng rãi trên mọi công trình mọi địa phương, nó có ưu điêm của Đèn Đường Led tuổi thọ cao, hiệu suất chiếu sáng lớn và kết hợp được yếu tố công nghệ trong điều khiển chiếu sáng -
CẦN ĐÈN CHIẾU SÁNG
Cần đèn chiếu sáng mạ kẽm được công ty VINA LiTe sản xuất phù hợp công năng sử dụng, Cần Đèn là bộ phận kết nối dữa trụ đèn và bộ đèn, ngoài kiểu dáng thông thướng như ống D49 , D60 cao 2m vươn 1,5m, ngoài việc phù hợp công năng sử dụng, Cần Đèn có thể được thiết kế và chế tạo với nhiều kiểu dáng đẹp mắt hiện đại nhằm mang lại thẩm mỹ cho mỗi công trình.
